La tua nuova casa a Bellinzona Nord. Due abitazioni esclusive, immerse nella tranquillità di Gorduno, a pochi minuti dal centro città.
A pochi minuti da Bellinzona, in un quartiere
residenziale immerso nel verde: un luogo sicuro, riservato e ideale per la vita di famiglia.
Dove la famiglia trova spazio. Dove la luce entra ogni giorno.
Case Ai Ronchitt è un progetto residenziale composto da due moderne case unifamiliari accostate (duplex).
Le abitazioni, progettate con linee pulite e materiali naturali, offrono ambienti luminosi, grande comfort abitativo e un contatto diretto con la natura circostante.
Grazie alla posizione ideale — in zona verde, ma vicinissima a Bellinzona — le Case Ai Ronchitt rappresentano la soluzione perfetta per chi desidera vivere in modo sereno senza rinunciare ai servizi della città.
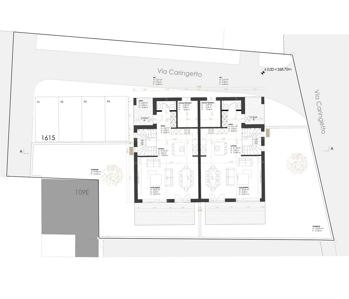
PIANOTERRA
Superficie abitabile 53,4 m² - CBM 139 m³
Scale 6,42 m² - CBM 18,45 m³
Locale tecnico 6,6 m² - CBM 17,18 m³
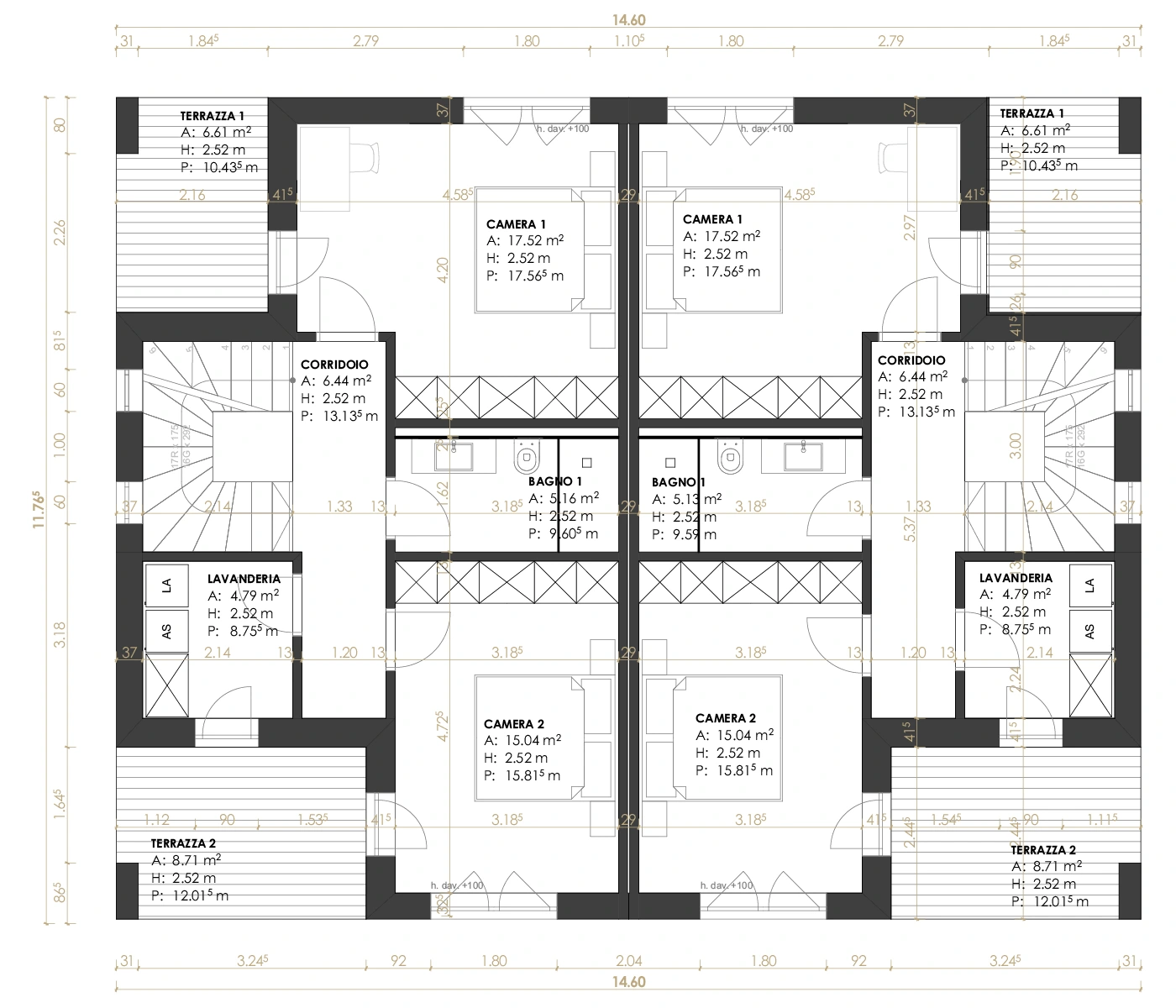
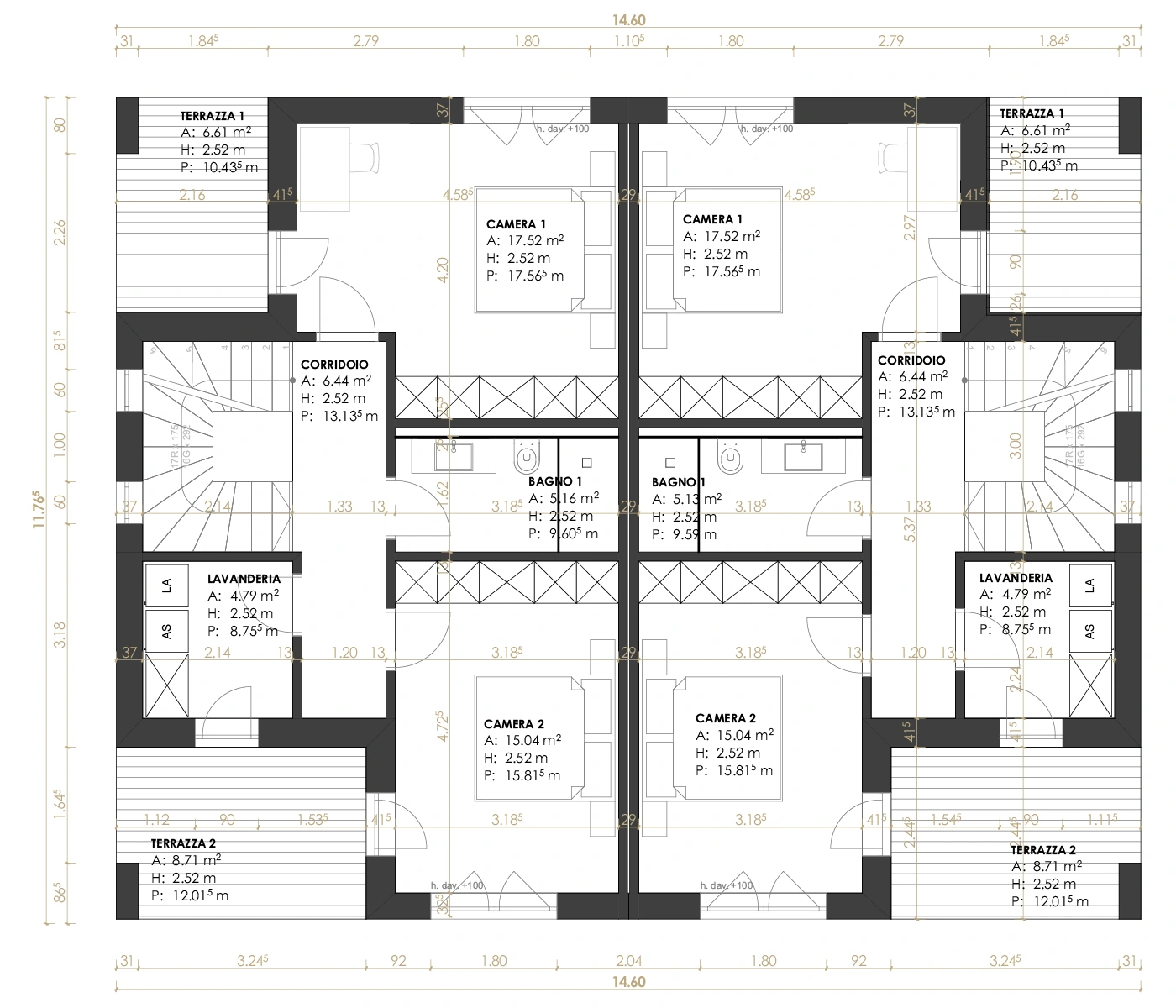
PRIMO PIANO
Superficie abitabile 50 m² - CBM 130 m³
Scale 6,42 m² - CBM 19,35 m³
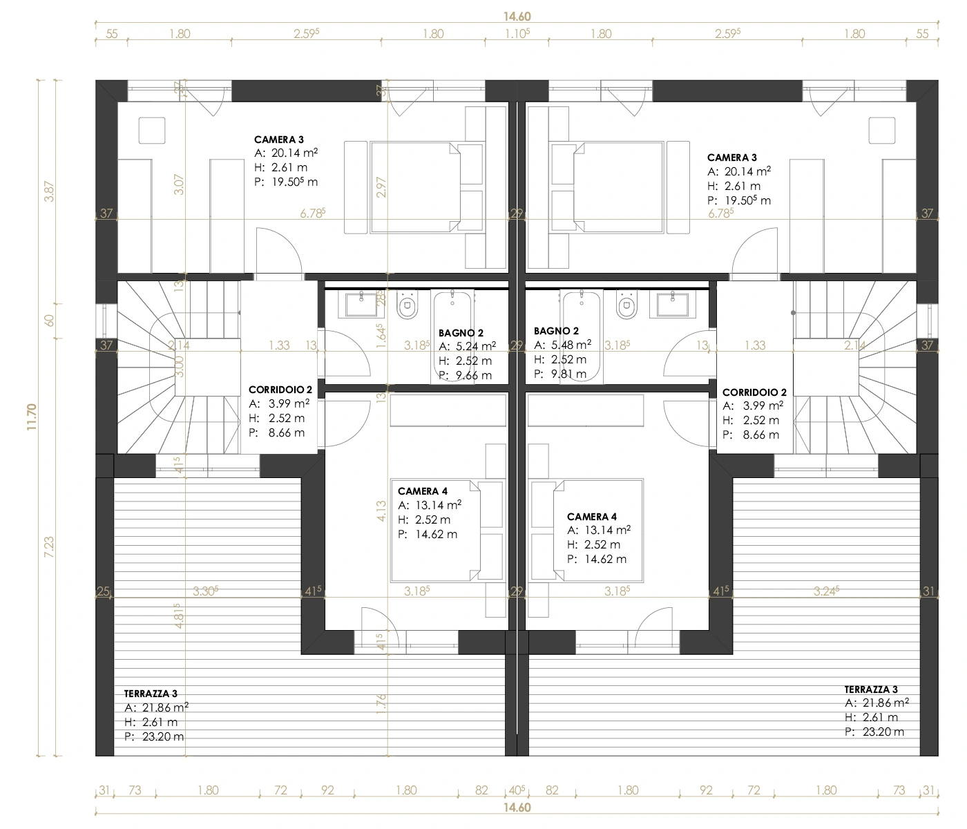
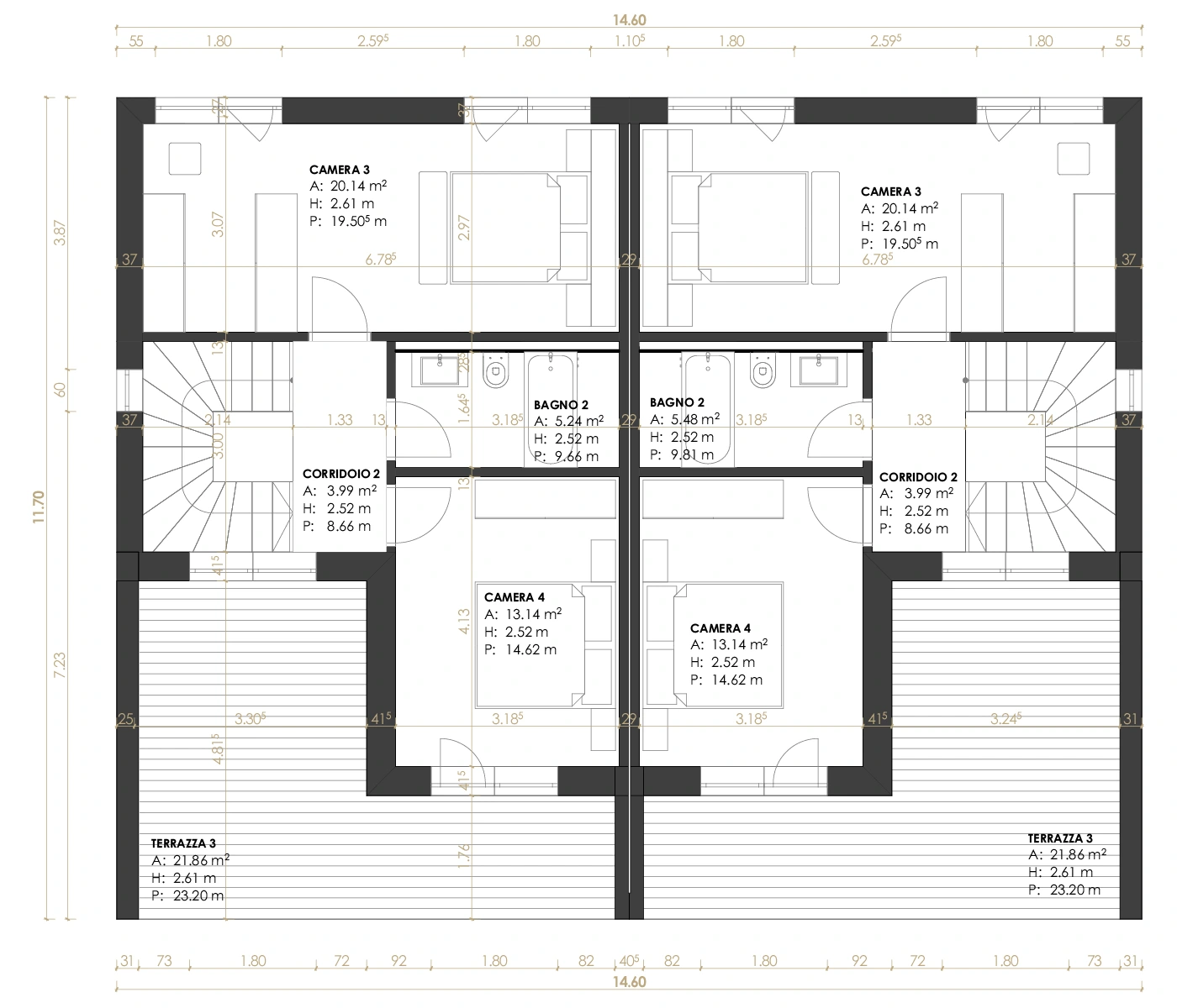
SECONDO PIANO
Superficie abitabile 43,6 m² - CBM 108,21 m³
Scale 6,42 m² - CBM 15,2 m³
PIANOTERRA
Superficie abitabile 53,4 m² - CBM 139 m³
Scale 6,42 m² - CBM 18,45 m³
Locale tecnico 6,6 m² - CBM 17,18 m³
PRIMO PIANO
Superficie abitabile 50 m² - CBM 130 m³
Scale 6,42 m² - CBM 19,35 m³
SECONDO PIANO
Superficie abitabile 43,6 m² - CBM 108,21 m³
Scale 6,42 m² - CBM 15,2 m³

Gorduno si trova sulla sponda nord del fiume Ticino, ai piedi di una valle laterale che sale verso le zone montane circostanti.


Gorduno è il luogo ideale per chi ama la tranquillità, le escursioni e l'autentica cultura montana svizzera, pur rimanendo relativamente vicino ai servizi della città.

Gorduno è il luogo ideale per chi ama la tranquillità, le escursioni e l'autentica cultura montana svizzera, pur rimanendo relativamente vicino ai servizi della città.
Situate a Gorduno, le abitazioni godono di un ambiente calmo e verde, pur rimanendo vicine ai principali servizi.
Via Caringetto, Gorduno | Bellinzona, Ticino, Switzerland
Interessato al progetto?
Contattaci per fissare un appuntamento o ricevere la documentazione completa.
Recapiti
Phone : +41 91 863 45 48
Phone : +41 79 474 20 66
Mail : info@caseaironchitt.ch
Mail : info@pgimmocasa.ch
Address : Via Caringetto 1, Gorduno
Contatto